인테리어를 어렵게 생각하시는 분들의 가장 큰 고민 중 하나는 바로 '벽'이라고 할 수 있습니다. 소파는 벽에 두어야 하며, 공간을 분리하기 위해서는 벽이 있어야 한다고 생각하시는 분들에게 사실 인테리어는 어렵게 다가올 수밖에 없죠. 이런 분들을 위해서 벽이 없어도 거실과 주방을 분리할 수 있는 세련된 아메리칸 스타일의 인테리어를 소개해 드리려고 합니다.

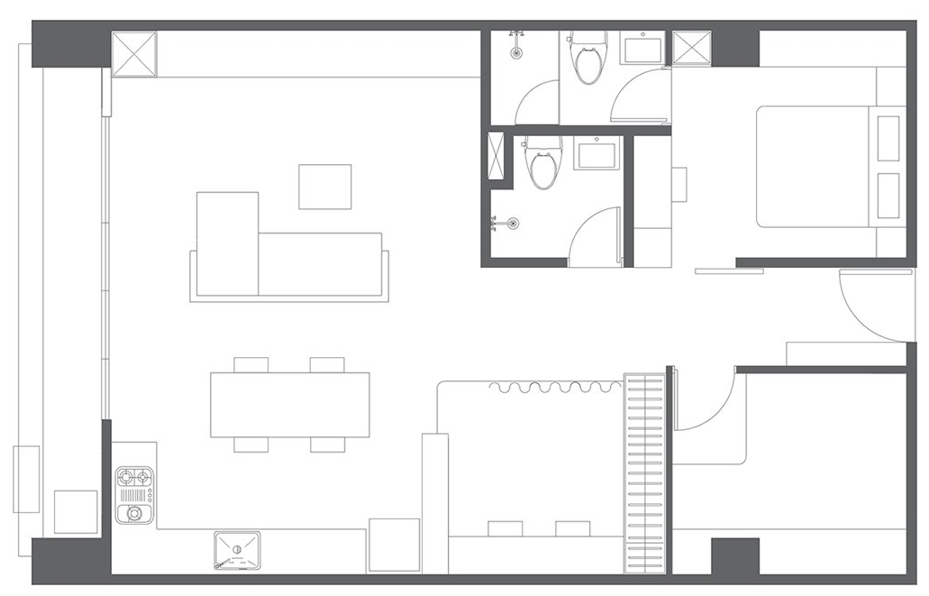
대만 신베이에 위치한 83m²(25평)은 한국식 아파트 구조와 비슷한 형태로 되어 있어 거실과 주방을 벽이 없을 경우 어떻게 인테리어를 할 수 있는지 참고하기에 참 좋은 아메리칸 스타일의 인테리어 배치를 보여주고 있습니다. 대만 아파트의 경우 거실과 주방을 분리하던 벽이 처음에는 존재를 하고 있었습니다. 하지만 벽이 주는 답답함을 없애기 위해 내벽을 제거한 뒤 가족의 생활패턴에 맞춰 깔끔하게 개방적인 구조로 인테리어를 하면서 거실, 주방, 서재 겸 홈오피스, 욕실, 부부 침실, 아이 침실 등으로 재구성되었죠.

3인 가족이 가장 선호하는 83m²의 아파트 구조를 살펴보면 거실과 주방을 분리하지 않고 하나의 공간으로 만들어 개방감을 확보해 가족이 공동으로 생활하는 공간을 넓게 보이는 효과를 만들었습니다. 여기에 각 가족 구성원들이 생활하는 방들의 경우 화장실과 욕실 등을 별도로 마련해 바쁜 출근 시간에 화장실 및 욕실을 이용하는데 불편함을 최소한으로 줄였죠. 가장 주목할 점은 코로나19로 인해 재택근무 등이 많아지는 가구를 위해 별도의 홈오피스 공간을 만들었다는 점입니다.


또 TV를 두는 공간에는 TV대신에 프로젝터와 스크린을 설치해 TV로 인해 불필요하게 잡아먹던 공간들을 빌트인 캐비닛을 설치해 수납공간을 확보하였죠. 25평대 아파트 인테리어를 고민하고 계시는 분들이라면 개방감을 위해 별도의 가벽 없이 소파와 주방을 하나의 공간으로 배치해 집안이 넓어 보이는 효과를 주는 이런 인테리어를 참고해 보시는 것도 좋을 듯합니다.








*출처:©Allen Interior Design
'디자인' 카테고리의 다른 글
| '비닐도 그림이었다고?' 명화를 감싸던 비닐마저 그림으로 표현한 극사실주의 작가 (0) | 2021.09.11 |
|---|---|
| '평범한 사진은 거부한다' 자신만의 독특한 여행 사진을 남긴 포토그래퍼 (0) | 2021.09.10 |
| 흑백사진 위 형형색색 실들로 입체감을 살린 아티스트(feat 유관순 열사) (0) | 2021.08.27 |
| 전 세계 아름다운 풍경을 배경으로 환상적인 여행 사진을 남긴 사진 작가 (0) | 2021.08.23 |
| '디즈니 공주들도 코시국?' 검은 마스크를 쓴 디즈니 공주들을 그린 아티스트 (0) | 2021.08.21 |




